Immeuble a usage multiple - à vendre - 5030 Gembloux

5030 Gembloux
1 495 000 €
Immeuble a usage multiple - à vendre
989 m²
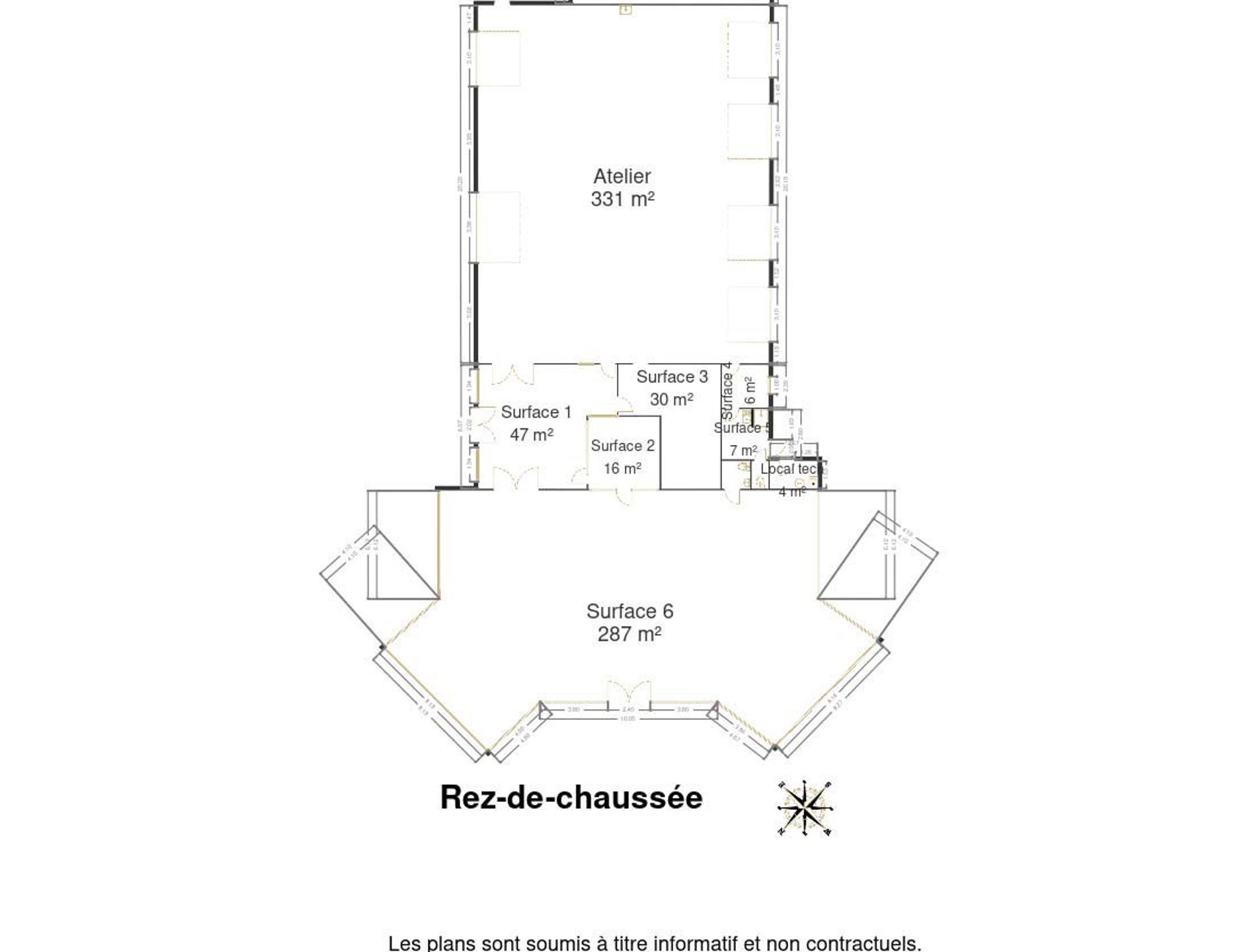
Jouissant d'une visibilité exceptionnelle et stratégique sur la N29 de Gembloux. Ensemble immobilier comprenant: un bâtiment utilitaire mixte en ossature métallique de 2001 érigé sur une parcelle de 8.751 m² entièrement bâtissable, dans un zoning industriel. Le terrain à bâtir offre un réel potentiel d’extension ou de développement complémentaire, idéal pour tout projet professionnel souhaitant évoluer sur le long terme. Composé d'un show-room vitré de 287 m² agrémenté de ses 3 bureaux, d'un atelier/garage automobile de 331 m² disposant de 6 portes sectionnelles dont une de 5m de haut, parfaitement adapté pour les activités mécaniques, logistiques ou artisanales. À l'étage, un vaste appartement de 141 m² disposant également d'un local de 32 m² vous permettant le stockage ou des bureaux supplémentaires. Au second étage, une superficie de 114 m² laissant libre cours à votre imagination. Parking 50 places, parcelle sécurisée, porte sectionnelle motorisée, alarme avec système de vidéosurveillance, châssis DV PVC, chauffage central au mazout. Atouts majeurs : grand garage fonctionnel et terrain à bâtir offrant de nombreuses possibilités. Opportunité idéale dans une région dynamique ! Vente sous forme de cession de parts sociales. Faire offre à partir de 1.495.000 €.

Détails

Général

Référence 7219409
Catégorie Immeuble a usage multiple
Garage Oui
Parking Oui
Surface habitable 989 m²
Surface du terrain 8751 m²
Disponibilité à l'acte

Bâtiment

Année de construction 2001
Parking intérieur Oui
Parking extérieur Oui

Nom, catégorie & situation

Nombre d'étages 2

En chiffres

Largeur front de rue 60
Surface bâtie (surf. bât. princ.) 791
Largeur de façade 11
Profondeur terrain 140
Atelier (surface) 287 m²
Atelier 1 (surface) 331 m²
Bureaux (surface) 125 m²
Largeur terrain 54

Equipement de base

Cuisine Oui
Nbre de toilette(s) (nombre) 3
Ascenseur Non
Nombre de bureaux général 5
Double vitrage Oui
Chauffage (type) mazout (chauf. centr.)
Nombre de salle de meeting 1

Divers

Nbre de grenier(s) (nombre) 1

Raccordements

Réseau informatique Oui
Égouts Non
Électricité Oui
Câbles téléphoniques Oui
Eau Oui

Equipement extérieur

Atelier Oui
Station d'épuration Oui
Atelier (surface) 331.44 m²

À proximité

Transports en commun (distance (m)) 10
Magasins Oui
Ecoles Oui
Transports en commun Oui
Centre sportif Oui
Autoroute Oui
Autoroute (distance (m)) 11000
Gare Oui
Gare (distance (m)) 2000

Charges & Rendement

Sous régime TVA Non

Sécurité

Contrôle d'accès Oui
Sécurité Oui
Alarme Oui

Équipements techniques

Centrale tél. Oui
Châssis (type) aluminium

Spécificités terrain

Type d'environnement industriel
Type d'environnement 2 central
Exposition de la façade avant nord-ouest
Risque d'inondation (type innondation) pas situé en zone inondable

Certificats / Attestations

Capacité de la citerne à mazout (capacite) 6500

Documents

Sélection des points d'intérêts
Prendre contact pour le bien : 7219409
* Champs obligatoires

En envoyant ma demande de contact, je déclare accepter que mes données complétées dans ce formulaire soient utilisées pour les buts mentionnés ci-dessus par Liboy Lejeune et BR associés SRL ; et ce, en accord avec la charte de protection de la vie privée du site. Je peux à tout moment retirer mon consentement en introduisant une demande écrite à l’adresse info@liboylejeune-br.be.

Préférences pour les cookies

La protection de vos données personnelles est importante pour nous. C’est pourquoi nous détaillons ci-dessous les différents services et fonctionnalités du site qui utilisent des cookies et nous vous laissons décider des cookies que vous souhaitez autoriser ou refuser.

Veuillez cependant noter que si vous bloquez certains types de cookies, cela pourrait impacter votre expérience de navigation sur notre site ainsi que les fonctionnalités disponibles.

Nous utilisons des cookies fonctionnels obligatoires pour assurer le bon fonctionnement du site. Ils sont, par exemple, nécessaires pour retrouver le résultat d’une recherche ou enregistrer le choix de la langue.

Certaines fonctionnalités, comme l’affichage de vidéos ou de cartes géographiques, sont assurées via des composants externes développés par des partenaires comme YouTube ou Google. Certains composants utilisent des cookies qui sont susceptibles de permettre à ces tiers de suivre le comportement des internautes afin, par exemple, de réaliser du ciblage publicitaire. L’activation de ces fonctionnalités et des cookies associés est donc soumis à votre consentement.