Entrepôt - à vendre - 4020 Liège

4020 Liège
139 000 €
Entrepôt - à vendre
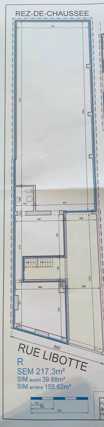
217,3 m²
Profitez de l'emplacement stratégique de ce rez commercial de plus de 217 m² disposant d'une large vitrine et d'une grande pièce arrière (nouveau sol et mur) avec excavation déjà effectuée, cave de 16 m² sous partie avant. Idéalement érigé au cœur d'un quartier dynamique offrant des facilités de parking (médiacité de 8h00 à 00h00). Son aménagement actuel vous permettra diverses possibilités et laissera libre cours à vos envies ! De nombreuses possibilités d'aménagement vous permettront d'y implanter votre projet en profitant du fait que sa toiture sur la plateforme est neuve et isolée. Son plus ? Une plateforme toit-terrasse de 180 m² privative. Son sous-sol vous permettra du stockage supplémentaire. A ne pas manquer !

Détails

Général

Référence 7132221
Catégorie Entrepôt
Garage Non
Parking Non
Surface habitable 217,3 m²
Disponibilité à l'acte

Nom, catégorie & situation

Etage 0
Nombre d'étages (numéro) 2

Spécificités terrain

Type d'environnement central
Risque d'inondation (type innondation) pas situé en zone inondable

Equipement de base

Chauffage (Format/energie) Pas installé

Certificats / Attestations

Certificat d'électricité (oui/non) non

Coordonnées intervenants

Numéro de mandat LIEGE-LIBOTTE-14

Documents

Sélection des points d'intérêts
Prendre contact pour le bien : 7132221
* Champs obligatoires

En envoyant ma demande de contact, je déclare accepter que mes données complétées dans ce formulaire soient utilisées pour les buts mentionnés ci-dessus par Caroline Lejeune ; et ce, en accord avec la charte de protection de la vie privée du site. Je peux à tout moment retirer mon consentement en introduisant une demande écrite à l’adresse info@liboylejeune-br.be.

Préférences pour les cookies

La protection de vos données personnelles est importante pour nous. C’est pourquoi nous détaillons ci-dessous les différents services et fonctionnalités du site qui utilisent des cookies et nous vous laissons décider des cookies que vous souhaitez autoriser ou refuser.

Veuillez cependant noter que si vous bloquez certains types de cookies, cela pourrait impacter votre expérience de navigation sur notre site ainsi que les fonctionnalités disponibles.

Nous utilisons des cookies fonctionnels obligatoires pour assurer le bon fonctionnement du site. Ils sont, par exemple, nécessaires pour retrouver le résultat d’une recherche ou enregistrer le choix de la langue.

Certaines fonctionnalités, comme l’affichage de vidéos ou de cartes géographiques, sont assurées via des composants externes développés par des partenaires comme YouTube ou Google. Certains composants utilisent des cookies qui sont susceptibles de permettre à ces tiers de suivre le comportement des internautes afin, par exemple, de réaliser du ciblage publicitaire. L’activation de ces fonctionnalités et des cookies associés est donc soumis à votre consentement.